Ormai è praticamente certo, avremo i finanziamenti: lo hanno dichiarato stamani, durante un incontro congiunto e con un certo orgoglio, i sindaci di Vallecrosia e Camporosso, Silvano Croese e Tiziana Civardi. Si tratta del progetto presentato alla Regione Liguria nellambito del Fas (Fondo aree sottoutilizzate), relativo ad una vasta area a cavallo del confine tra i due comuni.
Dopo aver saputo dalla Regione che, dei 22 progetti presentati (8 quelli che avranno subito il finanziamento), quello delle due cittŕ del ponente è risultato il 9° in graduatoria, è scattata la corsa alla progettazione, visto che lente regionale ha confermato che il risparmio che deriverŕ dai ribassi dasta che verranno fatti, ed i 500mila euro giŕ avanzati dai 32 milioni di euro finanziati, verrŕ fatto confluire sul progetto di Camporosso e Vallecrosia.
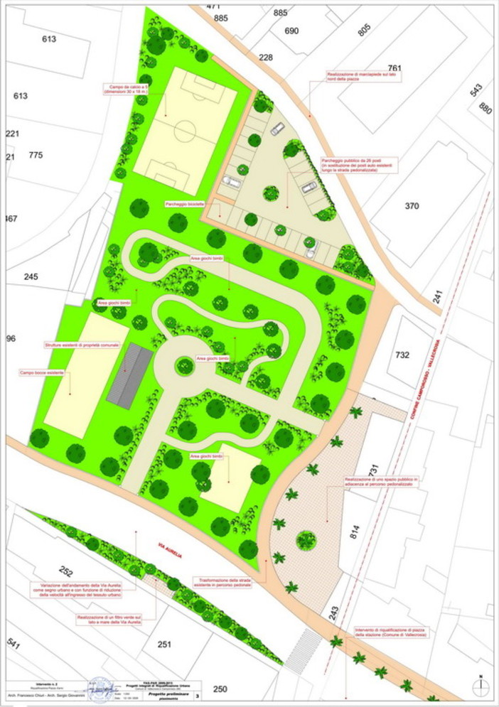
Contiamo di avere una progettazione definita, che parte subito dicono i due Sindaci - entro sei mesi. Siamo davvero soddisfatti perché si puň veramente cambiare la faccia della zona, creando anche posti di lavoro in un luogo che ora, si puň definire morto. Si tratta di lavori allarredo urbano ed allurbanistica, che andranno ad incentivare gli investimenti dei privati. La zona compresa quella che va da via Primo Maggio di Vallecrosia alloasi faunistica di Camporosso ed il progetto è lunico in tutta la regione, che vede la collaborazione tra due comuni. Verranno realizzati servizi pubblici per un successivo intervento dei privati a scopo turistico-ricettivo. E previsto un albergo a 100 metri dal mare, con almeno 90 camere, ma anche altre strutture per oltre 400 posti letto. La superficie di intervento è di 200mila metri quadri, con lo stesso orientamento dei due piani regolatori.
Camporosso realizzerŕ il nuovo sottopasso ferroviario, creando una nuova viabilitŕ con parcheggi (100 posti) fino alla stazione ferroviaria di Vallecrosia. Verrŕ riqualificata la zona delle case dei pescatori, con un piccolo borgo marinaro, al cui fianco verranno creati altri 50 posti auto. Camporosso ridisegnerŕ completamente piazza DArmi con lo spostamento del parcheggio. I fondi riguarderanno anche un intervento sulla piazza dellex stazione ed il collegamento tra la via Aurelia ed il mare nella zona di via Papa Giovanni XXIII°, ma anche piazza dArmi e la piazza del mercato di Vallecrosia (dove verrŕ spostato il palazzo comunale). Queste zone verranno collegate con il mare, con piste ciclabili e anche strade carrabili. In questo modo sarŕ possibile spostarsi in bicicletta, andando a diminuire notevolmente il flusso veicolare e la sosta delle auto, nella zona a mare.
Larea evidenziano infine i due primi cittadini - diventerŕ il vero e proprio polmone di Camporosso e Vallecrosia, con un totale di investimento pari a circa 5 milioni di euro, il cui 80% verrŕ finanziato dalla Regione. Entro il 2011 è prevista lassegnazione dei lavori mentre la realizzazione è presumibilmente completabile entro la fine del 2012. Le due amministrazioni hanno giŕ in previsione un altro obiettivo, dopo aver riqualificato larea, ovvero un piccolo porticciolo o un pontile al largo. Una struttura che possa dare ai natanti di passaggio, la possibilitŕ di fermarsi e fare escursioni o altro nella zona.
La Regione ha terminato Tiziana Civardi - ci ha premiato anche per questi fattori collaterali. Diamo la possibilitŕ a privati di venire ed investire su qualcosa di concreto. E se potremo venderci turisticamente anche Ventimiglia, con la zona archeologica, lo faremo. E una ricchezza per tutto il territorio, cosě come losai faunistica. Abbiamo decine e decine di volatili, che potrebbero garantire un bird watching unico. Il progetto è stato redatto dagli architetti Francesco Chiuri e Sergio Giovannini.
La relazione del progetto cliccando QUI
(Nella gallery la stretta di mano tra i due sindaci, le piantine del progetto ed i progettisti)















